Mougins 6h 207 m2 uima-allas
- 1 995 000€
- 1 995 000€
Yleiskatsaus
- Talot
- 5
- 5
- 207 m²
Yksityiskohdat
-
REF MGS-200
-
Hinta 1 995 000€
-
Koko 207 m²
-
Tontin koko 1720 m²
-
Makuuhuoneet 5
-
Huoneet 6
-
Kylpyhuoneet 5
-
Asuntotyyppi Talot
-
Kiinteistövero 3 112 /v
-
Energialuokka Ei tiedossa
-
Ekstrat Uima-allas, Parkkipaikka, Parveke/Terassi/Piha
Kohteen kuvaus
Mougins’n arvostetussa kaupungissa, rauhallisella alueella sijaitseva, erinomaisessa kunnossa oleva talo, jolla avoimet näkymät ja uima-allas.
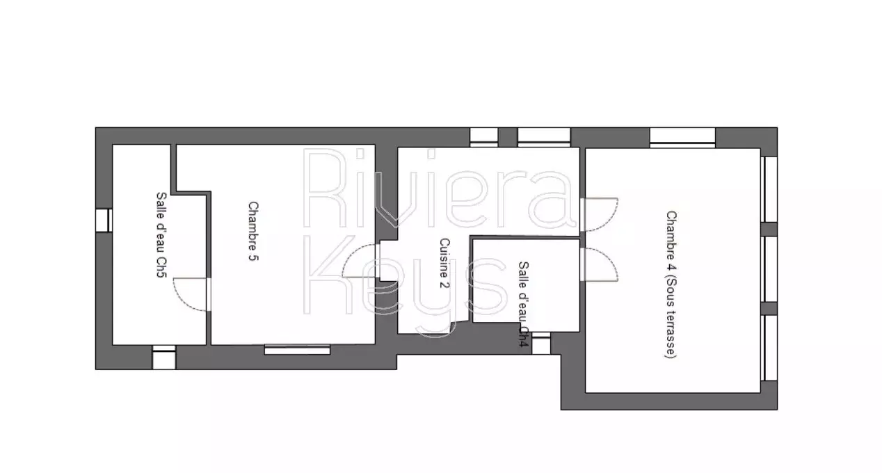
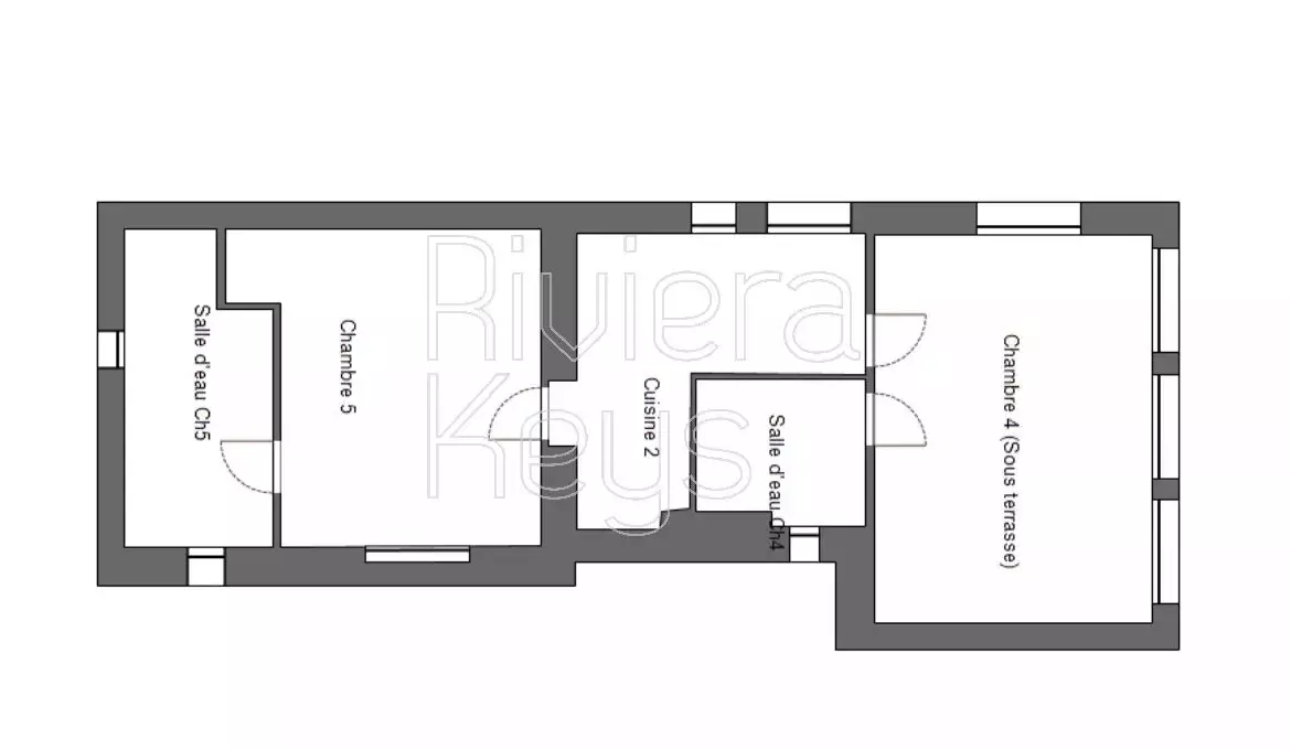
Talon sisäänkäyntikerroksessa on valoisa olohuone avokeittiöllä, kolme makuuhuonetta omilla kylpyhuoneillaan, työhuone sekä kodinhoitohuone. Taloon kuuluu erillinen asunto, jossa on kaksi makuuhuonetta, kaksi kylpyhuonetta sekä keittokomero, ja joka sopii erinomaisesti vieraiden majoittamiseen. Päätalon oleskelutiloista on käynti viehättävälle terassille, jolta aukeaa kauniit näkymät kukkuloille.
Pihalla on uima-allas, pool-house, autokatos sekä useita terassialueita.
Talolta on reilun 10 minuutin ajomatka Cannesiin ja n. 30 minuutin kävelymatka luontopolkuja pitkin Mouginsin pittoreskiin vanhaan kaupunkiin.
Asunnon sijainti on suuntaa-antava
Avaa Google -kartassa
- Habisol







































